Your Home Summary
18024 Fields Dr
12/7 Anthem I | Edmond
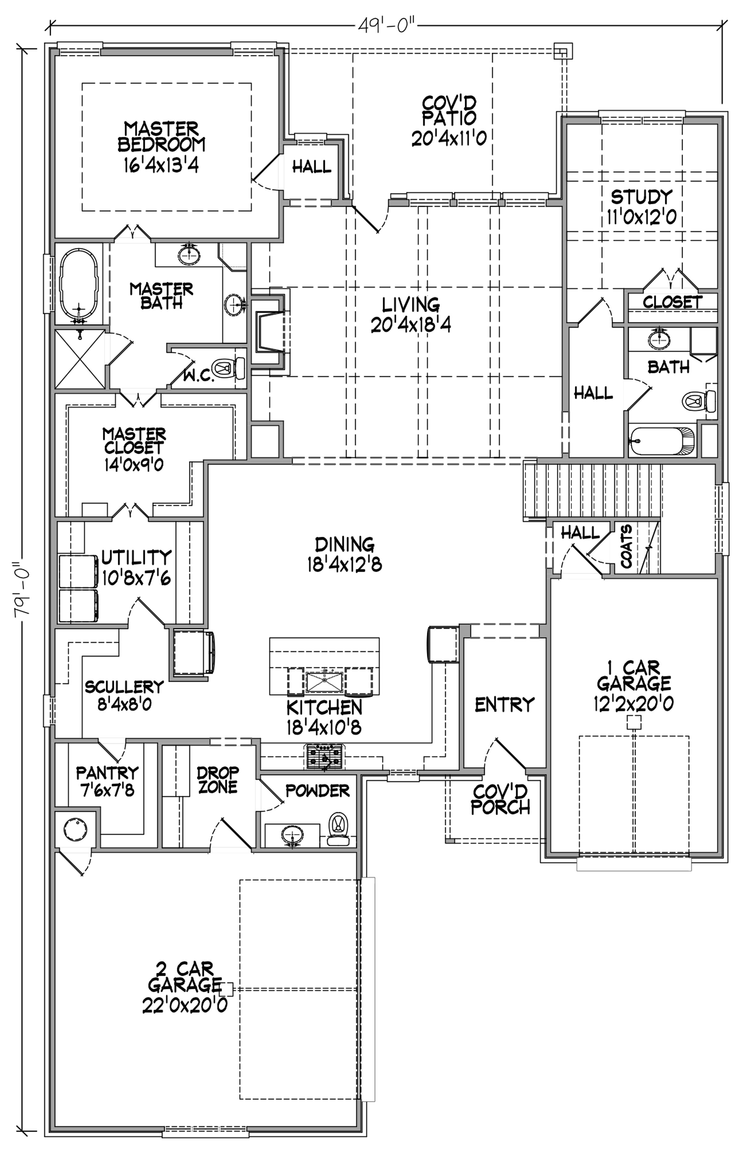
3,516
sqft
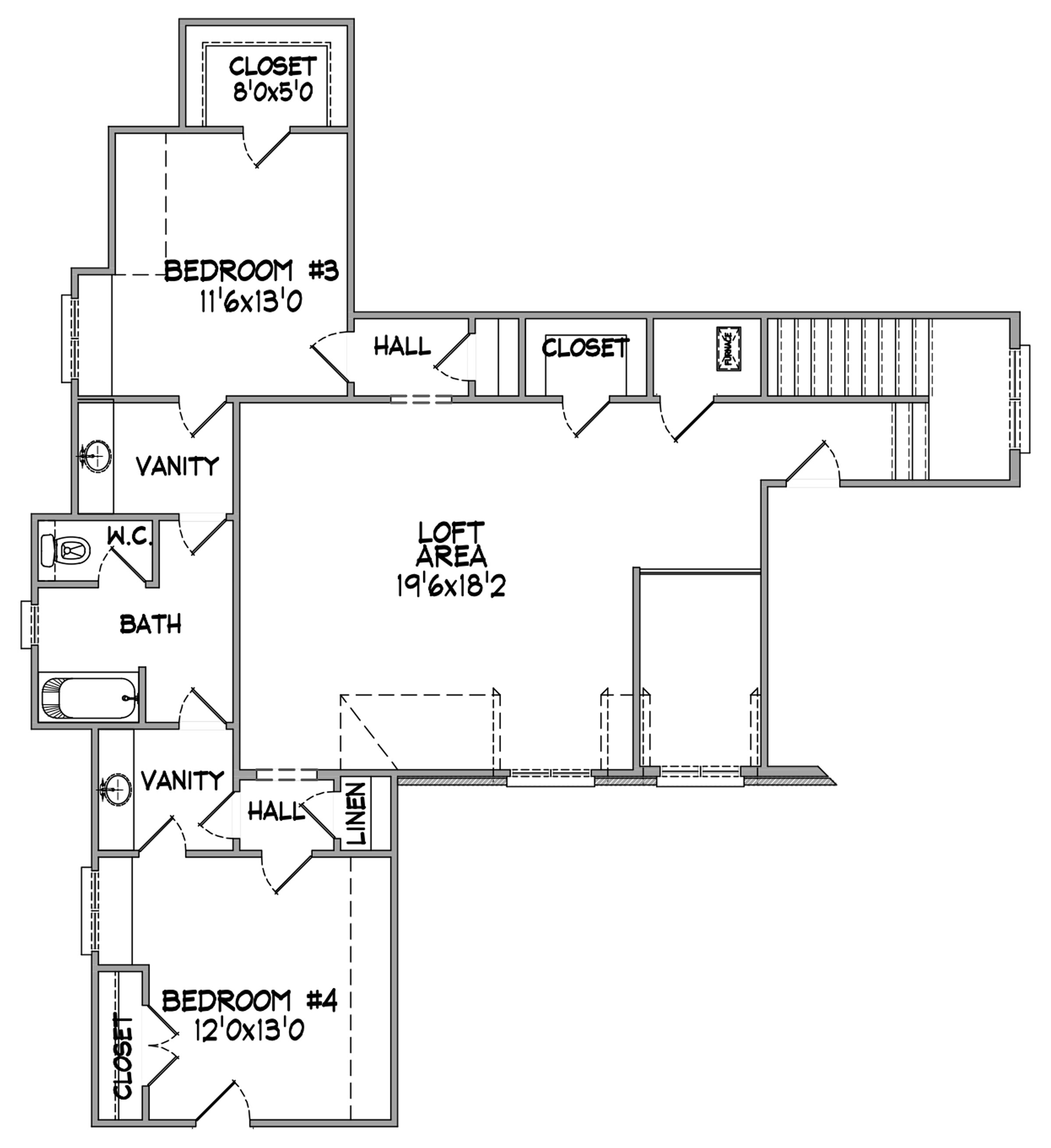
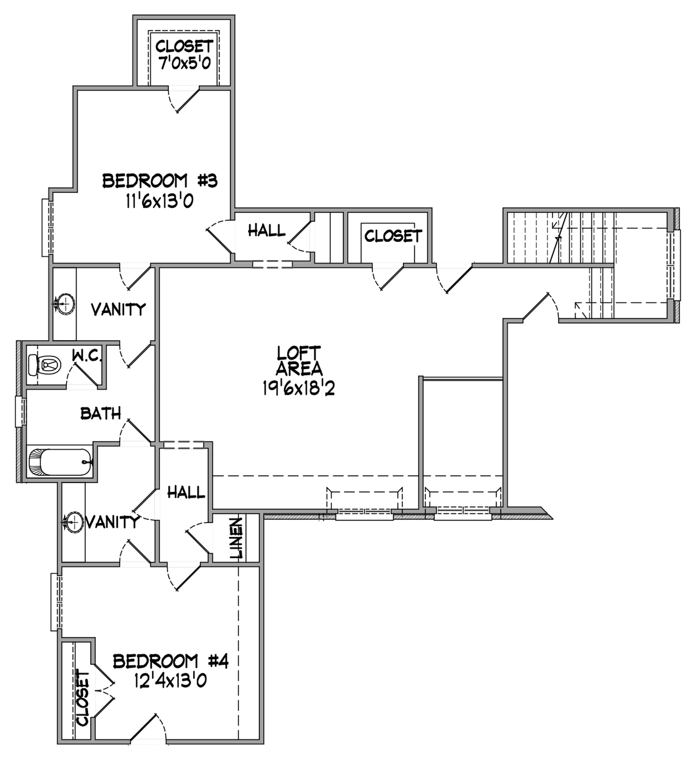
5
Beds
3.5
Baths
Anthem I
18024 Fields Dr
3,516
sqft
5
Beds
3.5
Baths
Included
Natural Stone Countertops
Included
Pot Filler
Included
Whirlpool Appliances
Included
Smooth Wood Floors
Included
Crown Molding
Included
Trim-Cased Windows
Included
Built-In Cabinets
Included
Transitional Style Fireplace
Included
Frameless-Glass Shower
Included
Full Masonry
Included
CertainTeed Weathered Wood Shingles
Included
A-Frame Patio Ceiling
Included
Iron Door
Included
Black/White Windows
Included
Full Sprinkler System
Included
Wood-Overlay Garage Doors
Included
Defect-Free Guarantee
Included
Price Guarantee
Included
Spray-Foam Insulation
Included
96% Efficient Furnace
Included
16 SEER Air Conditioner
Included
HERS Rated
Included
Post-Tension Slab
Included
Upgrades
Shaker Style Cabinets
$1,200
Soft-Close Cabinets
$3,500
Cabinets to the Ceiling With Clear Glass
$1,400
Floor Recept
$575
Black Plumbing Fixtures
$750
Black Hardware
$975
Rain Shower Head
$1,100
2nd Shower Head
$975
Privacy Fence Allowance
$8,000
Side Gutters
$975
Tankless Water Heater
$1,950
Garage Epoxy
$3,950
4-Person Safe Room
$4,900
Stainless Steel Utility Sink
$1,100
Electrical Consultation
$250
2" Faux-Wood Blinds
$1,950
Chest of Drawers
$1,400
Dog Dish Station
$2,975
NEIGHBORHOOD
Each Executive neighborhood has the highest quality standards to ensure your home value is maximized for years to come. Explore more about what makes this neighborhood special!