Your Home Summary
1603 Pinecrest Dr
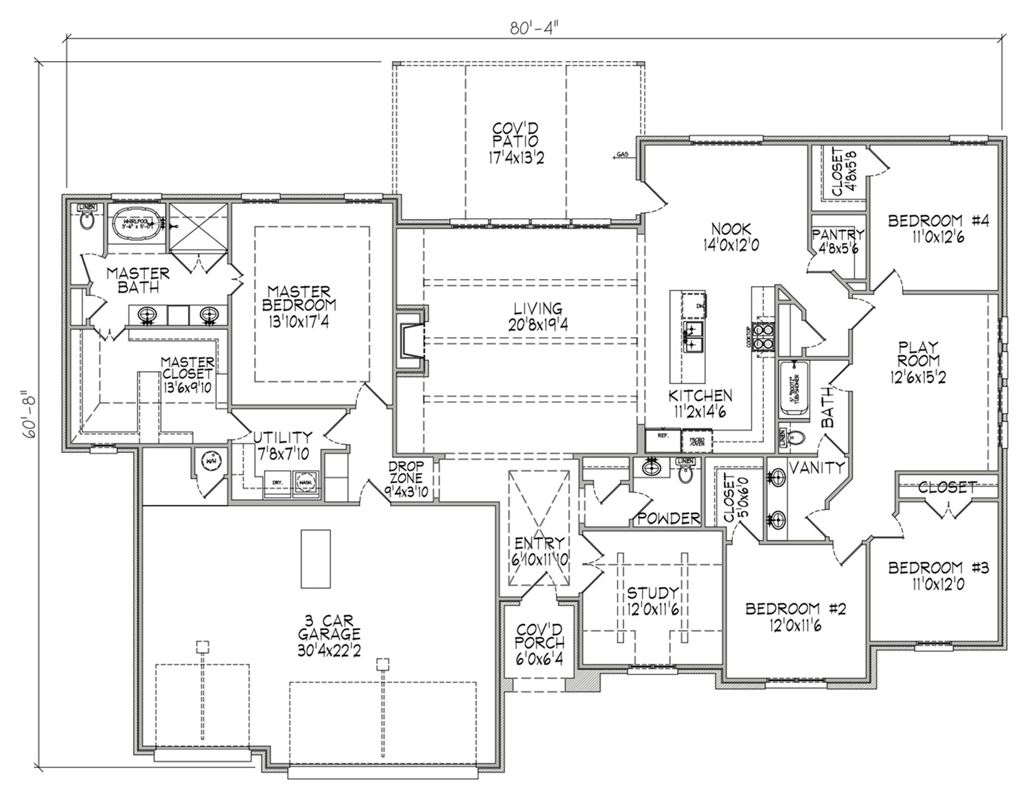
3/5 Estates at Forest Park | Claremore
2,796
sqft
4
Beds
2.5
Baths
Estates at Forest Park
1603 Pinecrest Dr
2,796
sqft
4
Beds
2.5
Baths
Included
Natural Stone Countertops
Included
Pot Filler
Included
Whirlpool Appliances
Included
Smooth Wood Floors
Included
Coffered Beams
Included
Crown Molding
Included
Trim-Cased Windows
Included
Transitional Style Fireplace
Included
Frameless-Glass Shower
Included
Full Masonry
Included
CertainTeed Weathered Wood Shingles
Included
A-Frame Patio Ceiling
Included
Iron Door
Included
Black/White Windows
Included
Wood-Overlay Garage Doors
Included
Defect-Free Guarantee
Included
Price Guarantee
Included
Spray-Foam Insulation
Included
96% Efficient Furnace
Included
16 SEER Air Conditioner
Included
HERS Rated
Included
Post-Tension Slab
Included
Upgrades
Privacy Fence Allowance
$8,000
10-Zone Sprinkler
$6,450
Side Gutters
$975
Garage Epoxy
$3,950
4-Person Safe Room
$4,900
2" Faux-Wood Blinds
$1,950
NEIGHBORHOOD
Each Executive neighborhood has the highest quality standards to ensure your home value is maximized for years to come. Explore more about what makes this neighborhood special!