Our Homes
Neighborhoods
Floor Plans
Experience
Design
FAQ
Choose City
Most Searched
3737 Floor Plan
3650 Floor Plan
3655 Floor Plan
Design
Quick Links
FAQ
Warranty
Contact
Contact Us
Tours
Call
Text
Send us a message
Book Your Tour
Click the Self-Guided Tour Button on any eligible home to book your tour!
Browse Homes
Tulsa
Oklahoma City
Most Searched
3737 Floor Plan
3650 Floor Plan
3655 Floor Plan
Design
Quick Links
FAQ
Warranty
Contact
Call
Text
Send us a message
Book Your Tour
Click the Self-Guided Tour Button on any eligible home to book your tour!
Browse Homes
Tulsa
Oklahoma City
Our Homes
Neighborhoods
Floor Plans
Experience
Design
FAQ
Contact
WARRANTY
INVENTORY
TERMS
PRIVACY
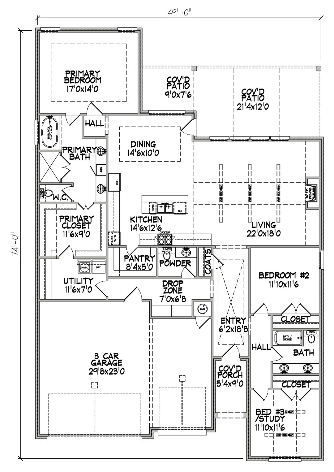
2173 | Executive Homes
Layout
Elevations
Arch B
Straight A
Straight B
Original A
Original B
Arch A
Arch B
Straight A
01
/ 06
2173 Plan
2,238
sqft
3
Beds
2.5
Baths
Select This Plan
2173 Plan
2,238
sqft
3
Beds
2.5
Baths
Layout
Elevations
Select This Plan
Arch B
Straight A
Straight B
Original A
Original B
Arch A
Arch B
Straight A
01
/ 06